
Why You Should Consider a Barndominium for Your Home
Are you in the market for a new home and considering building your own? If so, a Barndomium may be a perfect fit for you! These new homes combine the best of both a barn and condominium, as the name alludes. At JJ’s Builders, we are now specializing in Barndominiums and would love to help you create your dream project!
So… what is a Barndominium anyway?
A Barndominium is a building that incorporates both a living quarter as the main living area and a garage area, often used as a shop space. These homes are usually made of steel and can be customized to fit your needs and design style. While Barndominiums can be made by converting old barns into homes, more and more new-build constructions are happening – and we are excited about them all!
The Pros and Cons
Most Barndominiums feature an open-concept living room or great room with a high, vaulted ceiling. Most also utilize a rectangular foundation, allowing the floor plan to be customized to every owner’s unique needs.
Barndominium Pros:
- They are can be more affordable to build than conventional homes.
- They take about half the time to build as traditional houses.
- They are extremely durable and offer lots of structural support.
- They offer flexible space management and can be designed exactly how you like from the start.
- They offer low maintenance and require less expensive insurance costs.
Barndominium Cons:
There are a couple of “Cons” to Barndominiums.
- Financing can be more challenging to acquire than traditional home loans.
- Customized floor plans mean a smaller seller’s market if and when you decide to sell.
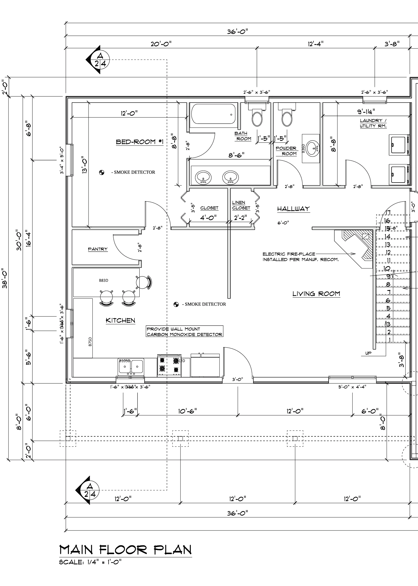
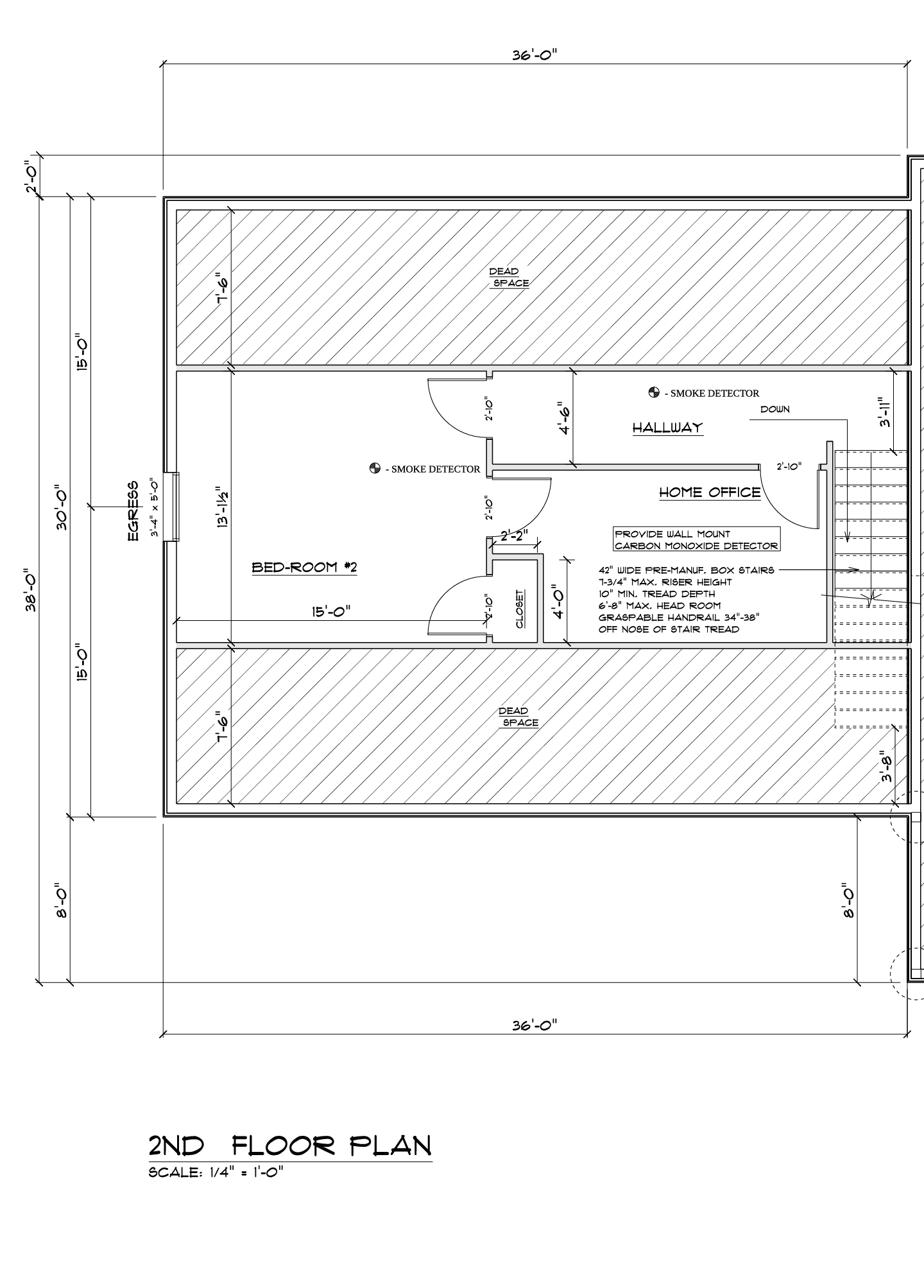
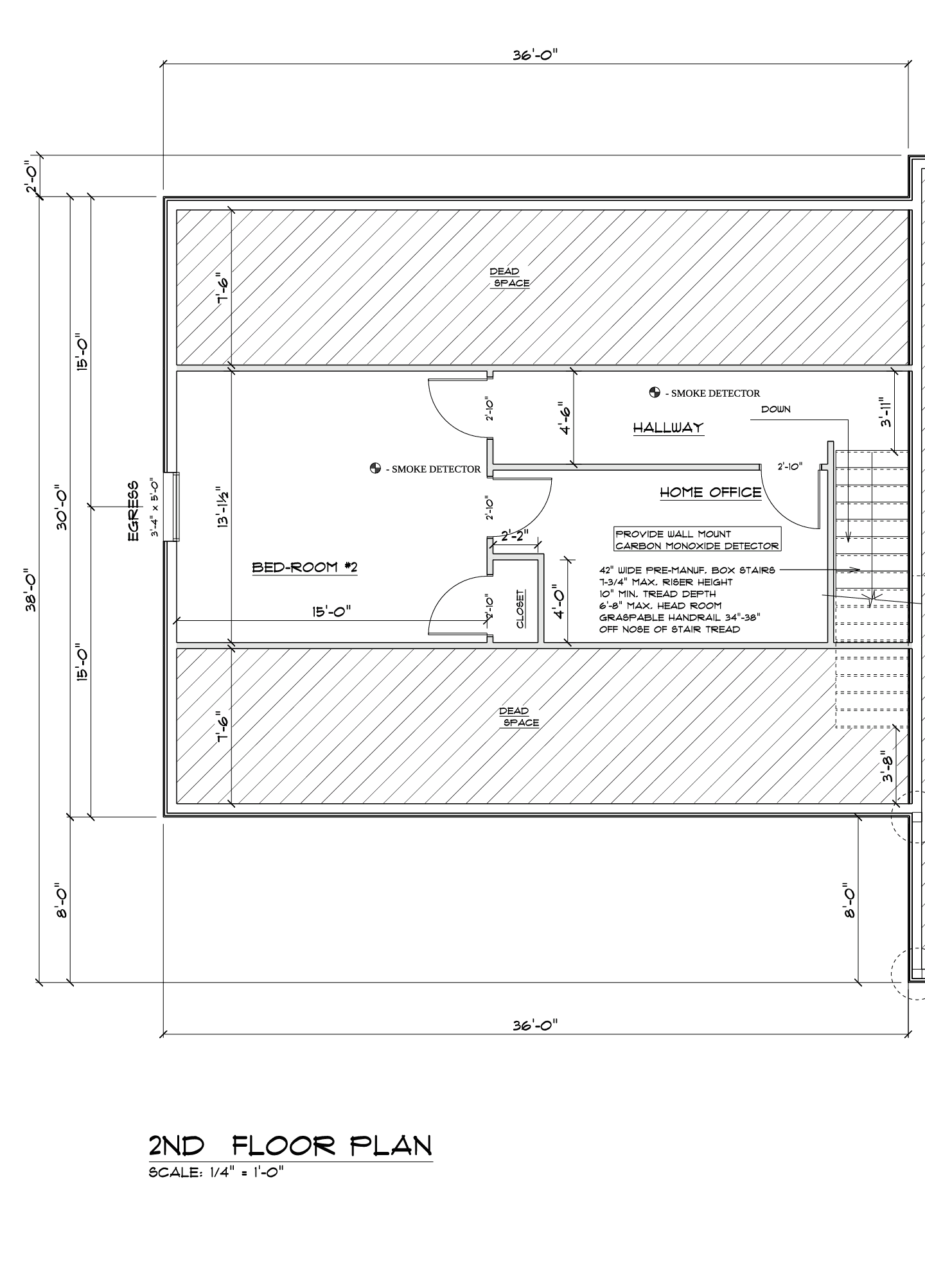
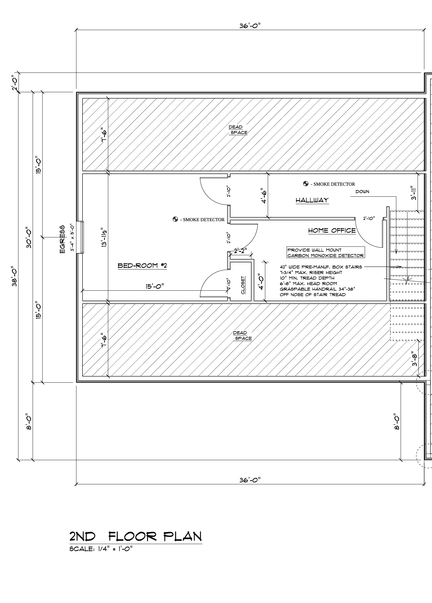
Here is an example of a Barndominium plan.



Getting Started
If you’d like more information on barndominiums, please connect with our team or call us directly at (717) 740-9570. We’d love to help you achieve your dream!
Ready to start your next custom build?
Recent Posts
What makes a new construction project feel smooth from the beginning instead of stressful before the first piece of equipment even arrives?
Building a Post Frame Build near the coast
comes with unique advantages. Open land, beautiful views, and proximity to
water make coastal properties incredibly appealing for barndominiums,
workshops, and agricultural buildings.
When planning a new garage or post-frame building, most people focus on size, layout, doors, and finishes. One detail that often gets overlooked, until it becomes a problem, is water management.
The first step is a phone consultation.
If needed, we will meet with you in person as well!


Contact Us

Holtwood, PA 17532
Monday-Friday 8:00 am - 4:30 pm



