
5 Common Questions Answered About Barndominiums

Barndominiums are a new style of home we see more and more clients looking to build. From customizable floor plans to multipurpose and functional spaces, a Barndominium may be the home for you! But we get it, you still have some questions.
We’re here to answer the five most frequently asked questions about Barndominiums and share more with you about these amazing up and coming homes.
What is a barndominium?

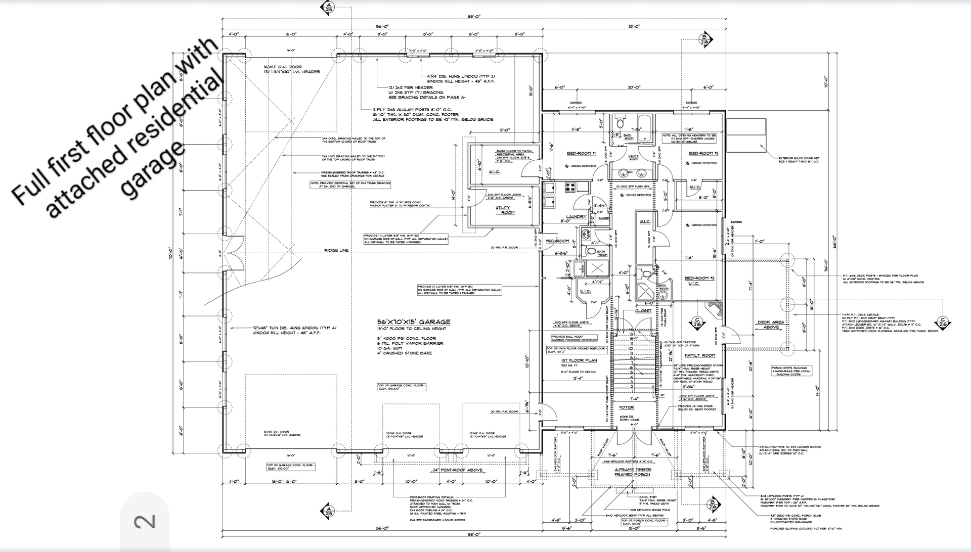
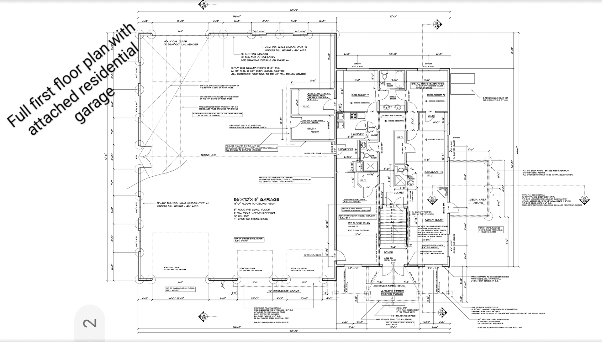
Many Barndominiums are actual barn-to-home conversions, but an increasing number are ground-up construction of new homes. Barndominiums are identifiable by their barn-like shape with high vaulted ceilings and are generally made from a steel frame. They often incorporate both a living quarters as the main living area and a garage area, often used as a shop space.
While Barndominiums can be made by converting old barns into homes, more and more new-build constructions are happening – and we are excited about them all!

These are very affordable, energy-efficient, and low-maintenance structures. You’ll find that many of these models feature:
- Energy-efficient windows
- Stained concrete floors
- Engineered concrete slabs
- Spray foam insulation
- Plumbing
- 9+ feet ceilings
Who lives in them?
People, horses, everything in between?

The short answer is any and everybody! Barndominiums are for homeowners a wonderful alternative to other types of new home construction. But the best part is that they can be customized to house whoever (or whatever) you need.
While these structures are designed with you in mind, they sometimes even feature a horse stable.
How long does it take to build?
As you all know, since COVID, delays in the construction industry have almost become the norm.
While some delays are to be expected, we have some of the most trusted vendors out there, and we strive to keep delays at a minimum.
Most barndominiums range from 6-12 months from start to occupancy.
Are Barndominiums customizable?

While we’ve already alluded to this in other questions, one of the most popular features of Barndominiums is their customizable options.
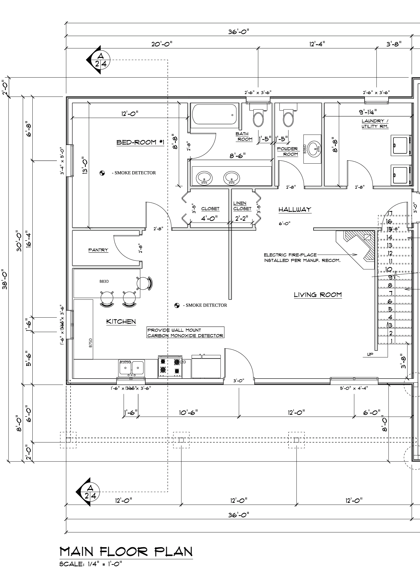
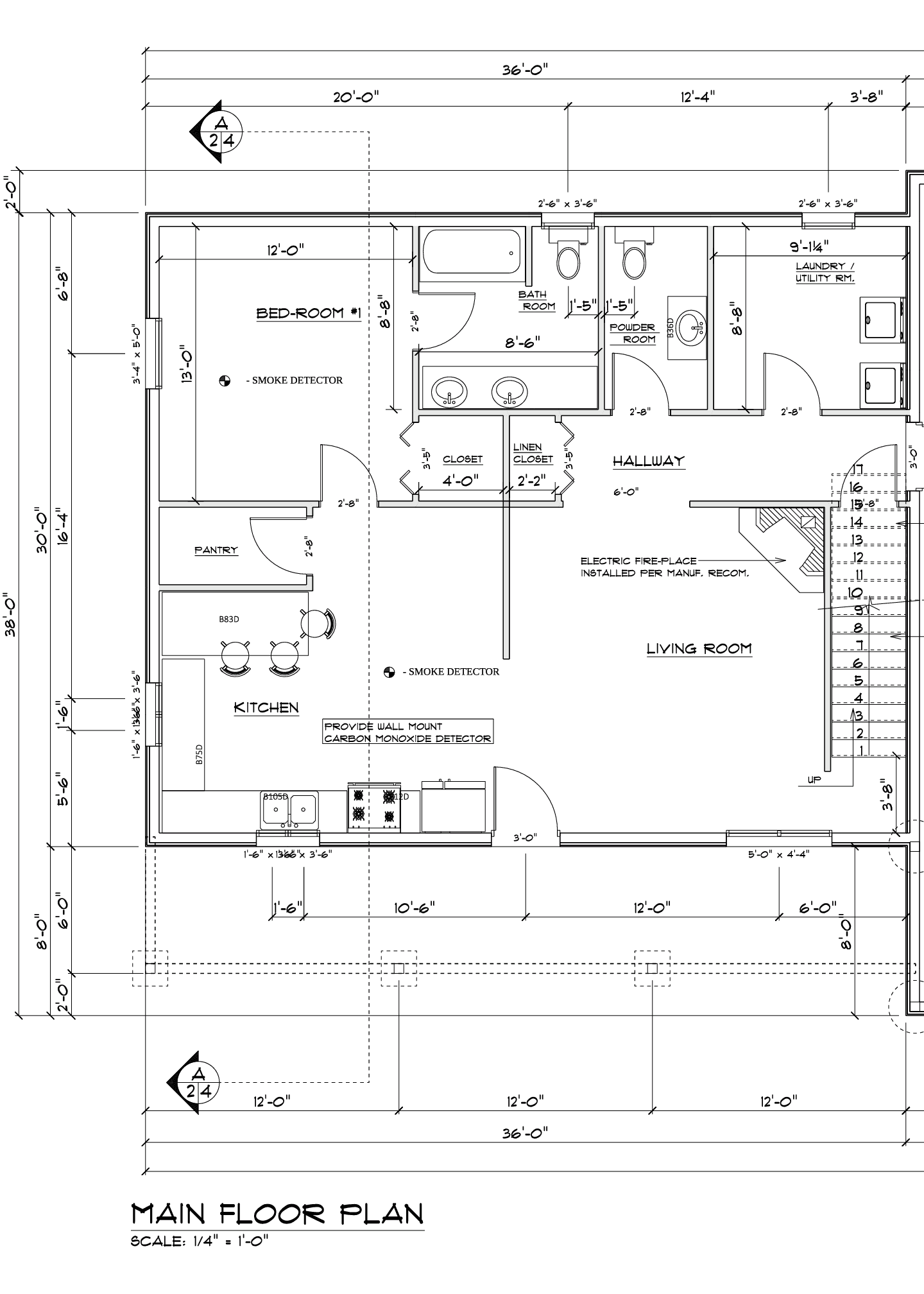
Your Barndominium can be designed to just about any specification and assembled anywhere you want. With similar interior finishing to traditional construction, your Barndominium can be customized to incorporate energy-efficient windows, garage and overhead doors, custom interior and exterior finishes, second levels, overhangs, extra storage, offices, animal shelters, and more.
How much does it cost to build a Barndominium?
You could buy a pre-built Barndominium, sure. But why would you want to? A DIY version can be built at a lower average cost, with far more customization, and will outperform a traditional home over the years.
Barndominiums can be designed however you’d like, with open concept living space that can be finished to your exact specifications. That means you can truly design the building of your dreams, and at a reduced average cost compared to traditional home construction.
Because every project can vary, putting an average cost on a Barndominium is difficult.
Barndominiums start at $400,000 and usually average around $500,000 the per square foot can vary greatly but is usually around $120 per square foot.
Considering a Barndominium?
We would love to talk with you more! Contact our team today to learn about pricing, options, styles, and how to get started on your dream Barndominium.
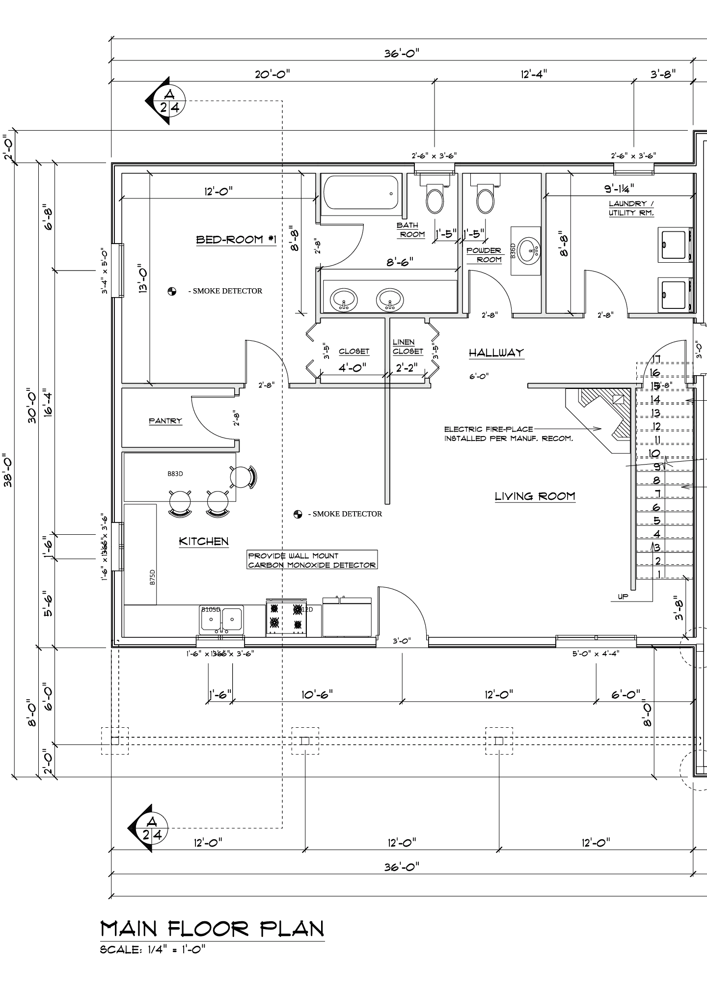
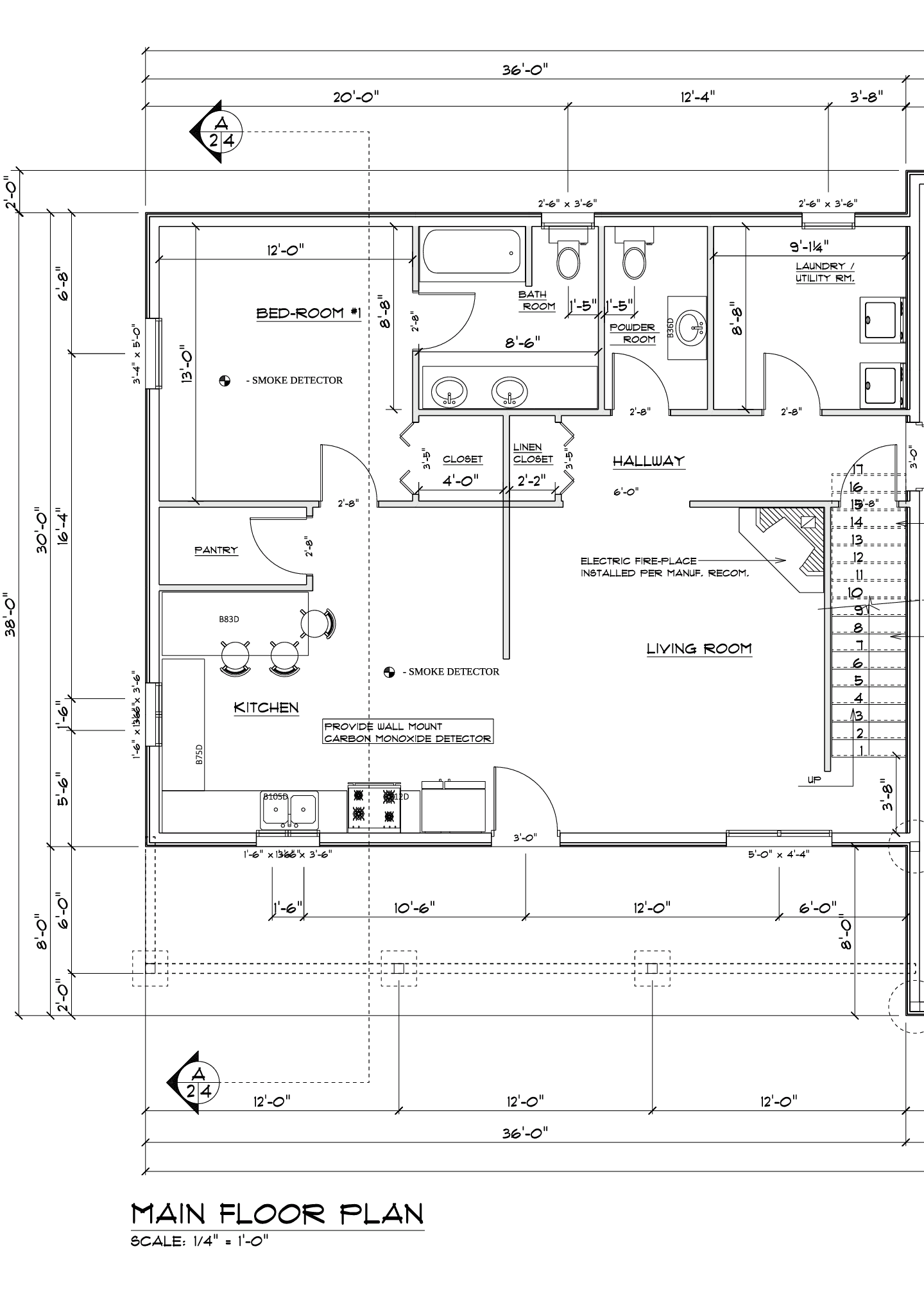
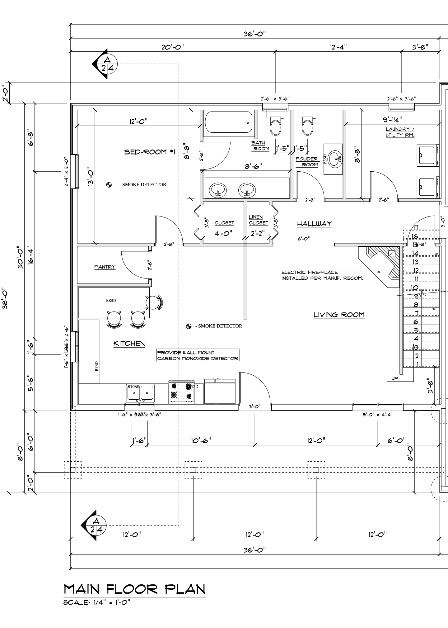
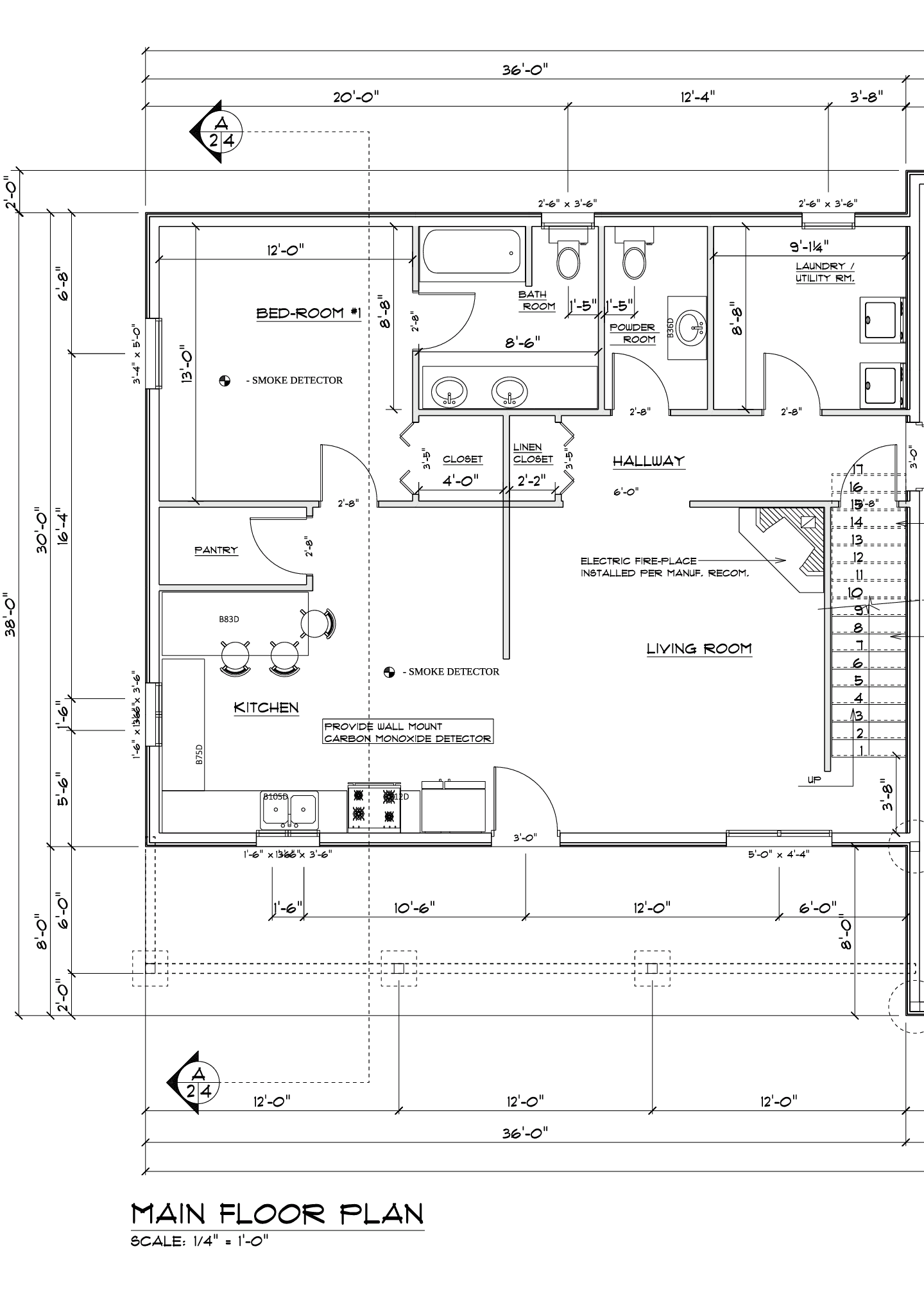
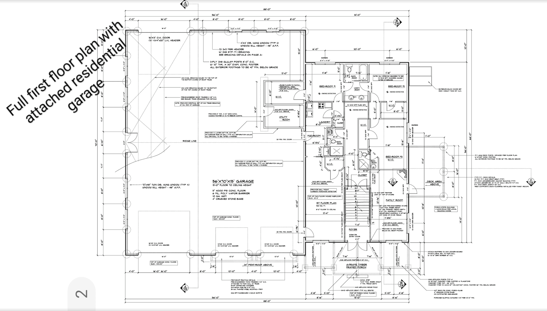
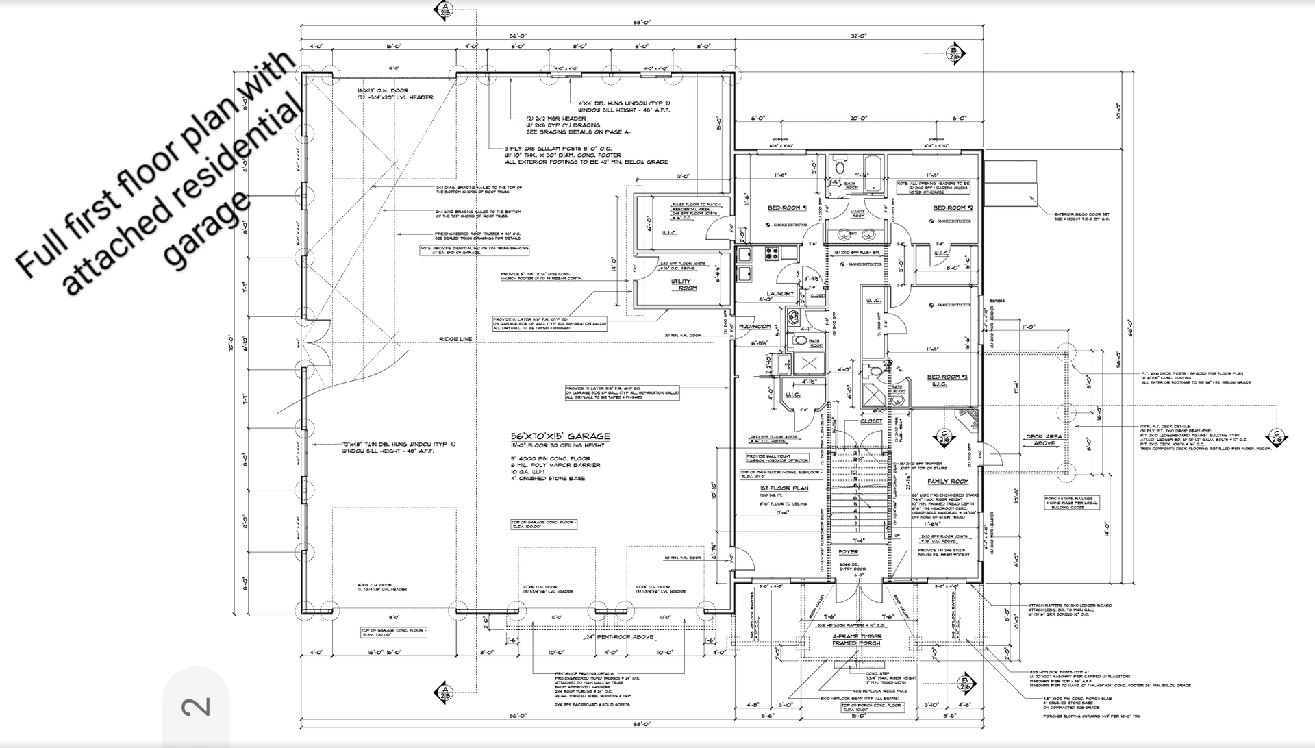
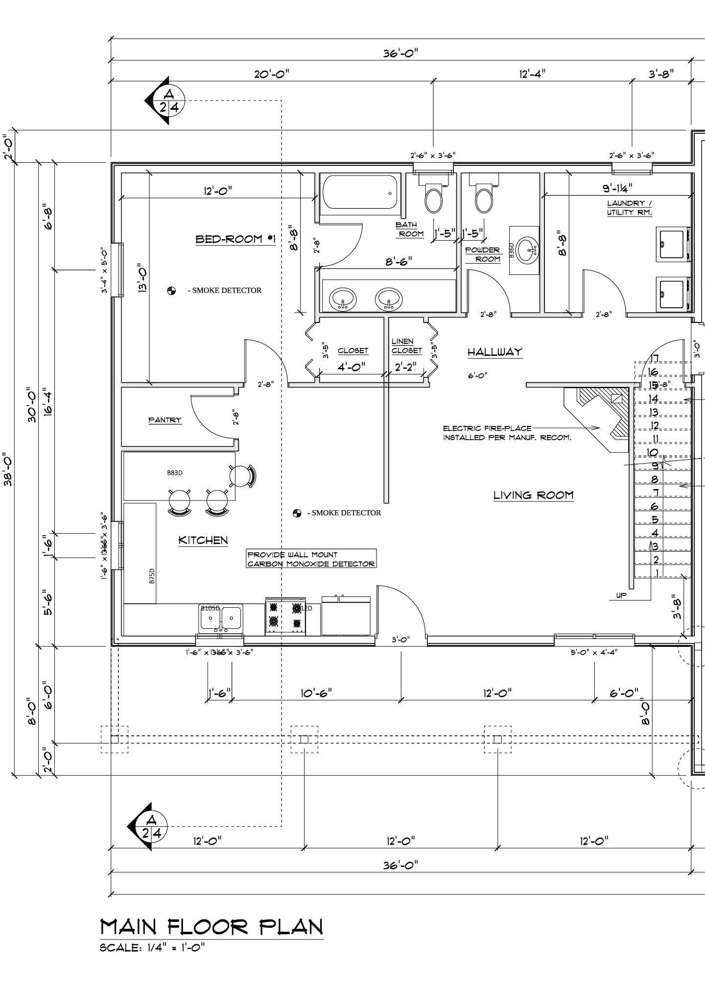
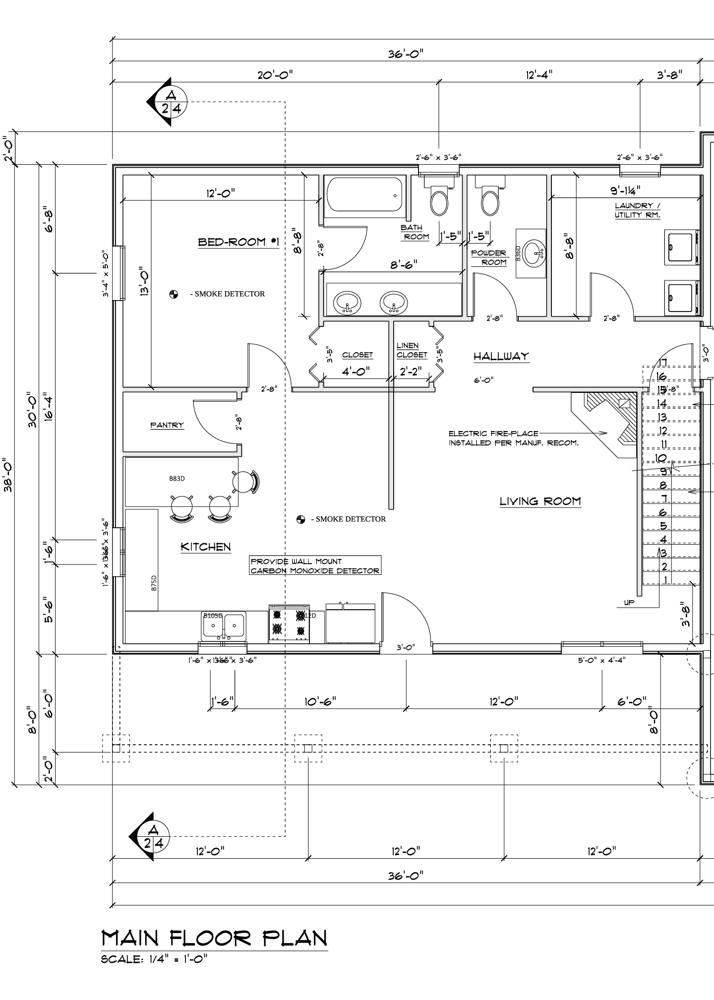
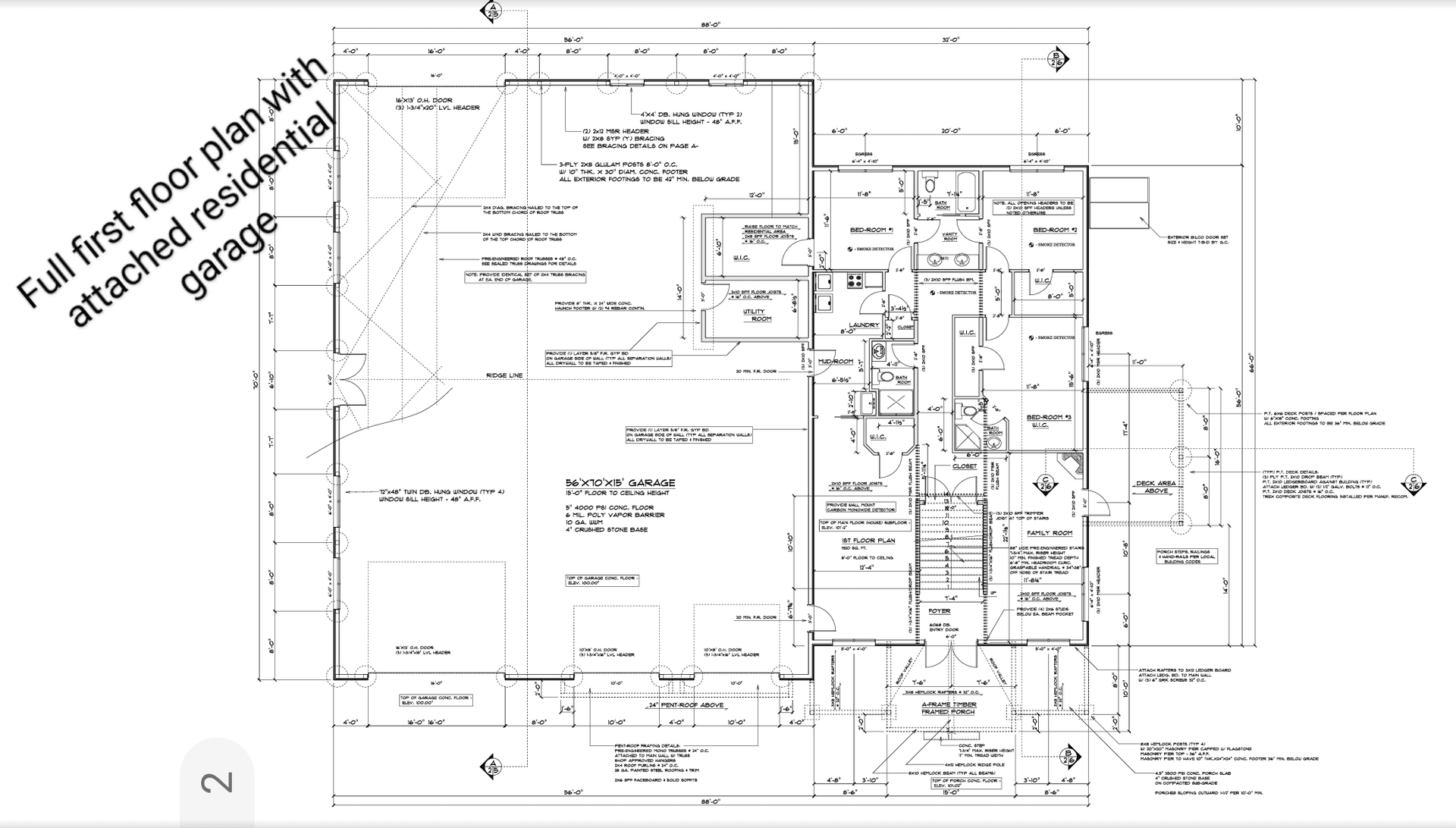
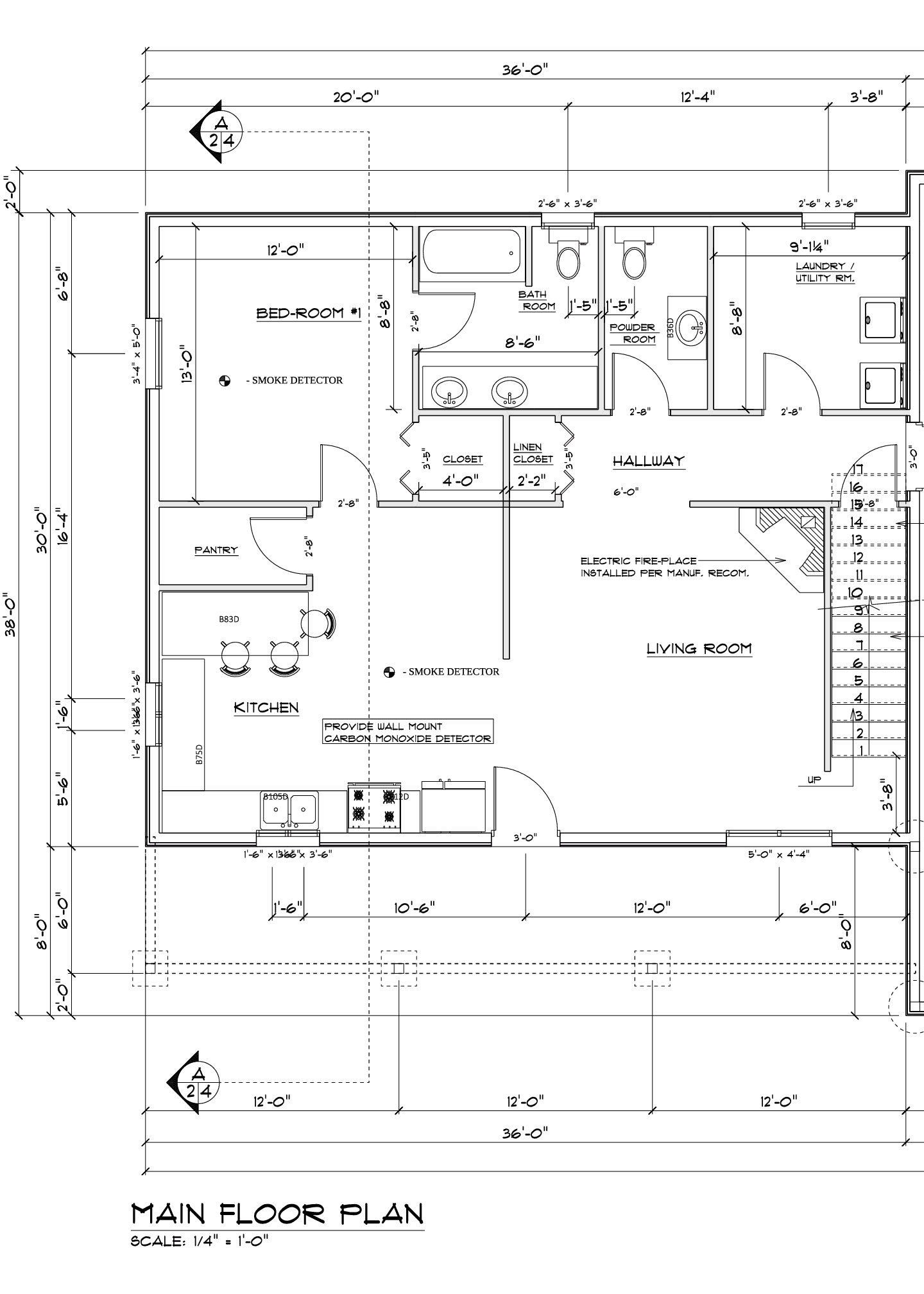
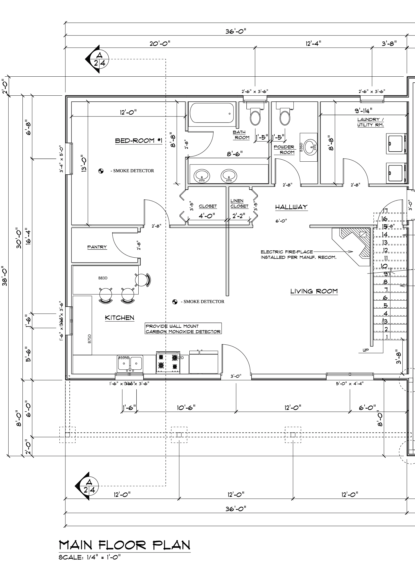
Floor Plan Ideas



Ready to start your next custom build?
Recent Posts
A custom deck is more than just an outdoor platform. It is an extension of your home, your lifestyle, and the way you enjoy the outdoors. Whether it becomes your go-to spot for quiet mornings, weekend barbecues, or family gatherings, a well-designed deck starts with smart planning.
This guide breaks down what to consider and what features are worth adding when building a custom deck, in a way that is practical, easy to digest, and fun to imagine.
What is the quickest way to turn a straightforward building project into a stop work nightmare? Starting excavation or ordering materials before you know what your municipality expects on paper. In Pennsylvania, permits for post frame structures are not one-size-fits-all, because the rules depend on your township or borough, your zoning district, and what you plan to use the building for.
When it comes to designing your dream barndo, custom home, garage, or post-frame structure, one...
The first step is a phone consultation.
If needed, we will meet with you in person as well!


Contact Us

Holtwood, PA 17532
Monday-Friday 8:00 am - 4:30 pm



