
3 Creative Barndominium Layouts
One of the most significant benefits of Barndominiums is the creativity that homeowners can use when building their homes. Barndominiums are very versatile homes. They can be customized to meet the specific needs of your family. Not only do you get to make the usual decisions regarding the number and placement of bathrooms, bedrooms, and closets, but Barndominium owners can take advantage of the ample square footage available to do truly unique things that traditional homes do not easily lend themselves to.
COMBINED WORK AND LIVING SPACE FLOOR PLAN
Barndominiums are perfect for hobby enthusiasts and entrepreneurs. Many Barndominium owners incorporate some of their space into an oversized garage or workshop for their livelihood or hobby. This barndominium layout features a huge workshop space and a beautiful home under one roof to give you the best of both worlds:



With more people working from home than ever, the ability to have such a versatile working space at home is an attractive benefit.
TRADITIONALLY INSPIRED PLANS
Some people mistakenly assume that all Barndominiums consist of a vast open room with not a lot of privacy. And indeed, many Barndominium owners do enjoy spacious floor plans; however, there are many different designs available. Barndominiums can have multiple floors, hallways, stairways, and other features typically associated with traditional builds.
Floor plans such as this one evoke a more traditional home both inside and out.



This layout boasts a traditional front porch and a second story giving it a cozy homelike feel and plenty of space for hospitality.
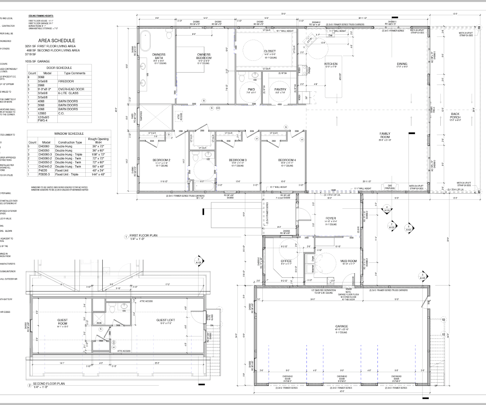
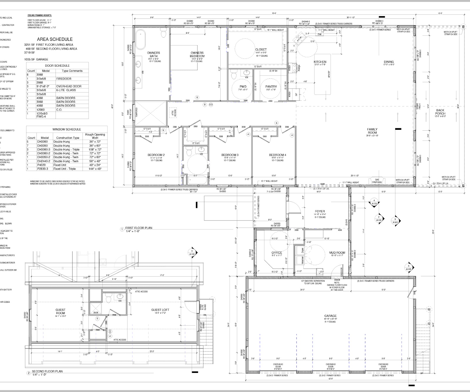
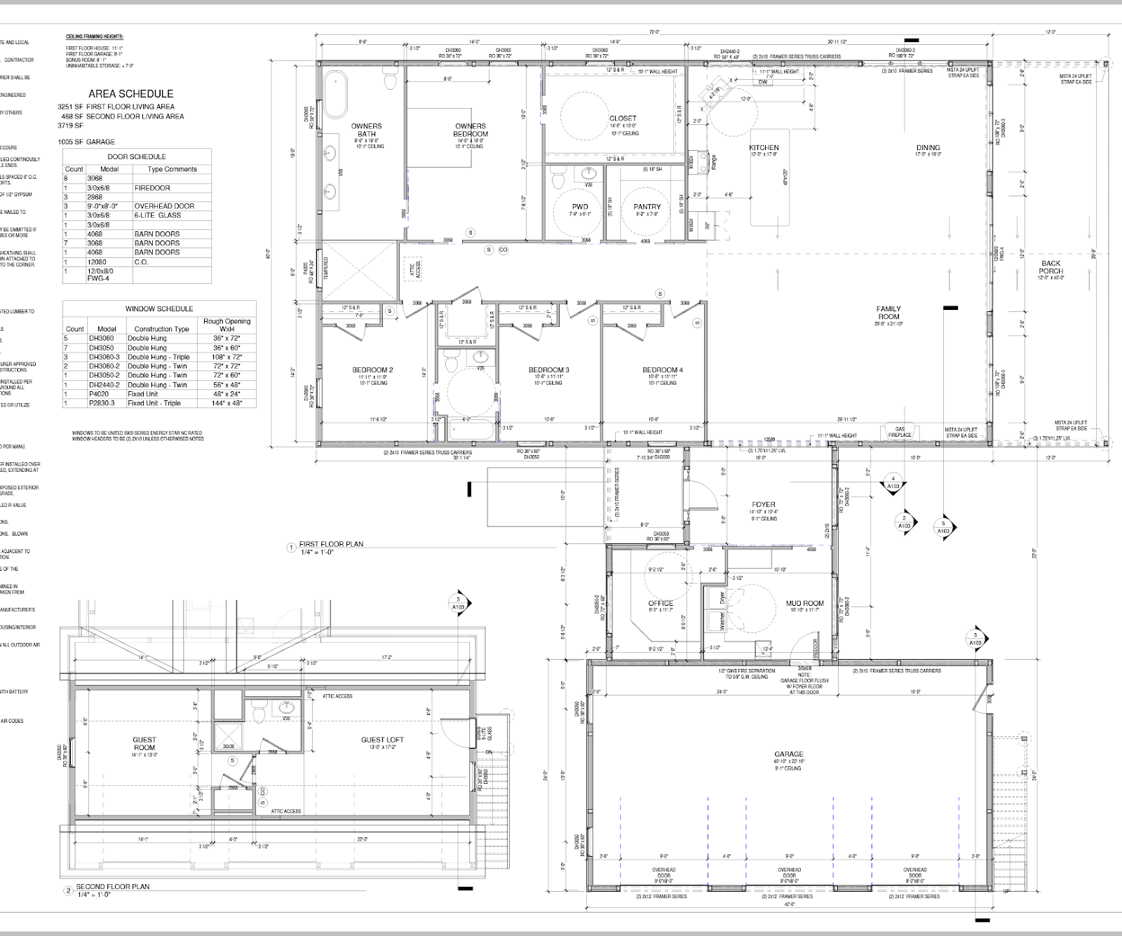
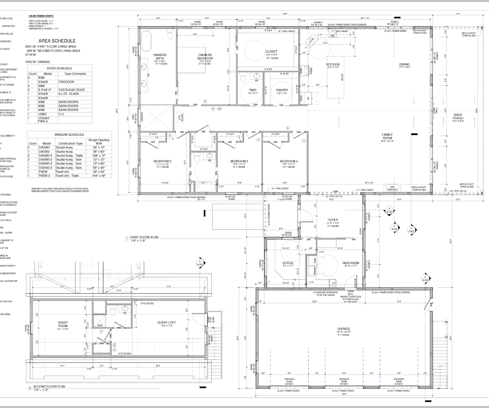
OPEN CONCEPT PLANS
Layouts such as this open concept layout are great for those with large families or people who entertain often. This floor plan offers an ample kitchen with open dining and family rooms that overlook a spacious back porch for outdoor entertaining. In addition, there are four bedrooms as well as guest rooms upstairs.


No matter what you’re looking for, there are many ways to customize and adapt the layout of your Barndominium. We can help you find the best possible Barndominium layout for your family.
Considering a Barndominium?
We would love to talk with you more! Contact our team today to learn about pricing, options, styles, and how to get started on your dream Barndominium.
Ready to start your next custom build?
Recent Posts
When planning a new garage or post-frame building, most people focus on size, layout, doors, and finishes. One detail that often gets overlooked, until it becomes a problem, is water management.
A custom deck is more than just an outdoor platform. It is an extension of your home, your lifestyle, and the way you enjoy the outdoors. Whether it becomes your go-to spot for quiet mornings, weekend barbecues, or family gatherings, a well-designed deck starts with smart planning.
This guide breaks down what to consider and what features are worth adding when building a custom deck, in a way that is practical, easy to digest, and fun to imagine.
What is the quickest way to turn a straightforward building project into a stop work nightmare? Starting excavation or ordering materials before you know what your municipality expects on paper. In Pennsylvania, permits for post frame structures are not one-size-fits-all, because the rules depend on your township or borough, your zoning district, and what you plan to use the building for.
The first step is a phone consultation.
If needed, we will meet with you in person as well!


Contact Us

Holtwood, PA 17532
Monday-Friday 8:00 am - 4:30 pm



